Riverside Cottage

Back around Christmas of 2023 we got a call. They explained that their home had been slowly flooding undetected for months, destroying basically everything inside. They were looking into options of either renovating or rebuilding.
When we first stepped into this small property along the Snake River the house had already been stripped of everything; only the shell and studs remained. The subfloors also remained but looked worse for wear. We instantly hit it off with these new clients while talking about their options.
It was decided that we would demolish the reminder of the home. This decision was made because they felt the roof was wonky, and the exterior walls were made with 2x4's instead of 2x 6s and they were interested in potentially adding a second floor to their main level 1200 foot layout.

It's Demo Day!


Demo day came and went. As the day progressed, we discovered that the wood joists were rotted and needed to be replaced. During the process, we decided to keep this front door because it we felt it would add to the rustic french country style that we were going for. A large rustic wooden beam we found in the garage was also kept. The idea was to use as the mantle over the fireplace in the living room.

Unfortunalty as we started to sand the door it started to fall apart. So it was decided to paint it white, the door handles and glass were replaced. And viola! A brand new door with an antique flare.
Let the Process Begin
The challenge was to design a brand new floorplan that fit on top of the current foundation and possibly add a second level. After geeting the enginner to pass off the idea we began sketches. We ended up flipping kitchen and livingroom to the other side of the home and reducing the main floor to one large master and laundry/ sewing room.
The inspiration on this project came from our passion to create a home with the timeless european infulence. The house ended up devloping into having a french country flare on a budget.

The client was involved throughout, but gave design lead to the company.
Vision Coming to Life!

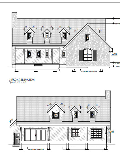
Front Elevation: A work in progress but great potential!
Exterior Magic
The exterior changed throughout the design, so it was nice to see these finishes come together.



Interior Bones
The client wanted this home to be their retirement home, but really only needed one room for themselves. They wanted to be closer to their children and have a space to entertain their grandchildren when they came to stay. So we added this unfinished bonus room built within the trusses upstairs that the clients could finish later.

It is always fun to see the drywall come up after framing. Once you add the drywall, it made the house feel so much bigger!

We did run into some difficulties with the fireplace. The clients wanted a wood buring stove set in a fireplace alcove, but with requirements for the fireplace along with the requirements for the mantle height, the box for the fireplace eneded up being too big for the living room space. It was decieded to create a separate section on the back of the house for the fireplace to sit and vent up.


Coming Together
It was fun to challenge ourselves with designing a beautiful space on a budget and I think we were able to choose some really great finishes.

We ended up deciding to go with the stone in the kitchen. The stone as the backsplash with the labor was about $3000 total. Which eneded up being only $1000.00 more than the tile we had planned. In the end the small price increase created a much bigger impact to the overall feel and design of the home.


A porch was added to the back as a place to relax and take in the river views.
A Material Moment


The tile in the half bathroom is the same tile we used in the entryway on the European Farmhouse just outside of Rexburg. This tile is beautiful and has an amazing price tag of $1.80 per square foot. Just lay the two tiles in a checkerboard pattern! You can find a link for the grey tile HERE and the white tile HERE.
The paint color we choose ended up being Evergreen Fog by Sherwin Williams.
The second image is the inspiration for the half bathroom. HERE


We wanted a stone-like floor to bring in the French country rustic charm into the main bathroom. We picked the Montana tile from Bedrodians in the Silver Bow color. You can find the link to it HERE. (image 1)
The Shower Walls are Celine Matte in Taupe. You can find a link HERE. (image 2)
The mirrors were from Target HERE
And the vanity from Home Depot HERE
We picked oil-rubbed bronze hardware for the whole house
Final Entryway

In the entryway we used the Driftwood Fog color and had some antique French hooks to hang on the wall.
Final Kitchen

Wall Color: Westhighland White by Sherwin-Williams
Cabinet Color: Accessible Beige by Sherwin Williams and Knotty Alder with a Custom Stain
Countertop: Carrara Delphi from Valley View Granite
The kitchen has an open floor plan to flow smoothly into the living room and take advantage of the space.

One of my favorite things about this house is the kitchen. The stone adds a level of warmth and depth that is simply beautiful and comforting at the same time.
Stone: Alpaca in the Orchard Limestone From Creative Mines- Link HERE.
Sink: DeerValley-Link HERE
Faucet: Delacour in Oil Rubbed Bronze from Signature Hardware- Link HERE
Cabinet Color: Accessible Beige by Sherwin Williams
Living Room Final


The wood mantle came from a rustic timber beam that we found in the garage. It really ties the space in together and adds to the charm. The large sliding door that you see to the left was crucial as the clients' wanted to maximize the views of the Snake River.

The space under the stairs was set aside for our clients to add a desk later down the road.
Half Bathroom Final

The half bathroom has the same Driftwood Fog color, same as the Entry, and has checkerboard tile on the floor.
Laundry Room/Sewing Room Final


The laundry room was made extra large to accommodate a sewing station, one of the clients' requests.
The faucet and sink used is the same as the kitchen.
Primary Bed and Bathroom


In the Primary Bathroom, we made the most of the small space and created a space of tranquility and rest.
Shower Faucet: Oil Rubbed Bronze from Signature Hardware


During the build, we ended up changing the window in the Master Bedroom into a French Door, providing better views of the River and a way to access the deck.
We were so greatful to be apart of this AMAZING project and hope that our clients can spend many happy years there together.
